The Jacie

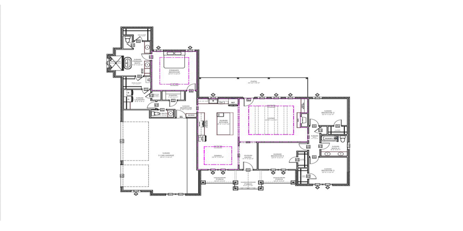
4 Bed l 2.5 Bath l 2 Car Garage

2,347 SF

 

This thoughtfully designed 4 bedroom, 2.5 bath floor plan by Breck Homes offers a functional layout with a balance of open living space and private retreats. Located in Steelwood Ranch, this new construction home features a spacious open-concept design connecting the living room, kitchen, and dining area, creating a central hub for everyday living and entertaining.

The kitchen is positioned at the heart of the home and includes a large island with ample workspace and seating, flowing seamlessly into the main living area. The living room is designed to feel open yet comfortable, making it ideal for both gatherings and quiet evenings.

The primary suite is privately situated and includes an en-suite bathroom and walk-in closet, offering separation from the secondary bedrooms. Three additional bedrooms are located in a separate wing of the home, providing flexibility for family, guests, or a home office, along with convenient access to a full bathroom and a shared half bath for guests.

Additional features of the floor plan include a 3-car garage, efficient use of space, and a layout designed for comfort, storage, and everyday functionality. Built by a trusted home builder in Amarillo and Canyon, TX, this plan is ideal for buyers searching for homes for sale in Amarillo TX, acreage homes, or new homes in Canyon TX with modern farmhouse design and practical living in mind.

 

*Renderings are for illustrative purposes only. Actual home may vary in colors, materials, design, and finishes.