10055 Steelwood

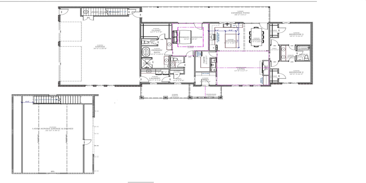
3 Bed l 2.5 Bath l 3 Car Garage

2,133 SF

Sales Price: SOLD

 

Welcome to this stunning home in Steelwood Ranch, where thoughtful design meets everyday comfort.

This beautifully crafted 3 bedroom, 2.5 bathroom home offers exceptional space and functionality, complete with a 3 car garage and an unfinished upstairs man cave/bonus room—perfect for future expansion, a media room, or private retreat.

Step inside to a spacious open-concept layout featuring a large kitchen designed for entertaining, complete with a double oven, expansive island, bar area with sink and mini fridge, and an oversized walk-in pantry. The kitchen flows seamlessly into the living room, highlighted by vaulted ceilings and a cozy wood-burning fireplace, creating a warm and inviting gathering space.

The secluded primary suite offers privacy and relaxation, featuring a spa-inspired bathroom with his and her vanities, a freestanding soaking tub, a separate shower, and a large walk-in closet.

Enjoy outdoor living year-round with large covered front and back patios, ideal for entertaining or simply relaxing in the peaceful surroundings of Steelwood Ranch.

This home combines style, comfort, and room to grow — all in one of the area’s most desirable communities.

 

*Renderings are for illustrative purposes only. Actual home may vary in colors, materials, design, and finishes.